+34 971 698 242

Este conjunto de fincas en el noreste de Mallorca destaca por una estructura poco habitual en el mercado: dos viviendas completamente independientes en una misma parcela. Una configuración que ofrece opciones de uso claras y flexibles tanto para propietarios como para inversores.
Sobre una parcela de aproximadamente 27.800 qm con una ligera pendiente, se distribuyen dos unidades independientes, cada una con su propio acceso, piscina, terrazas y jardín. La distribución permite un uso paralelo sin limitaciones, ya sea como residencia privada, propiedad para varias generaciones o como combinación de uso propio y rentabilidad.
La Cala Agulla se encuentra a unos diez minutos a pie. Capdepera y Cala Ratjada, con su puerto, restaurantes e infraestructura, están a pocos minutos. También hay varios campos de golf en las proximidades.
Tres accesos independientes garantizan un alto nivel de privacidad. Cada unidad dispone de su propia entrada, complementada por un acceso adicional para personal. La parcela, con carácter de parque y pozo propio, ofrece vistas abiertas y parciales al mar.
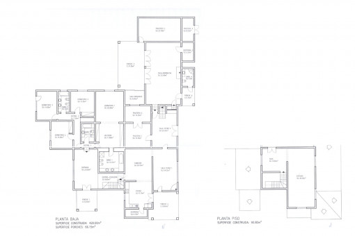
La vivienda principal cuenta con aproximadamente 600 qm construidos y unos 438 qm de superficie habitable. Los espacios amplios, los techos altos y los grandes ventanales crean una sensación de amplitud y luminosidad. Dispone de seis dormitorios dobles, seis baños (cuatro en suite), dos cocinas y varias terrazas, ofreciendo gran flexibilidad de uso.
La estructura existente permite además la posibilidad de crear hasta cinco unidades de vivienda independientes dentro de la vivienda principal.
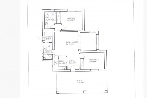
La casa de invitados, de unos 160 qm construidos, completa el conjunto con una unidad independiente que incluye salón-comedor, cocina, dos dormitorios y dos baños, además de terrazas privadas y piscina propia.
El equipamiento incluye aire acondicionado, calefacción central de gasóleo y sistema de pellets, lo que permite su uso durante todo el año.
Lo que define esta propiedad es la combinación de dos unidades independientes, accesos separados y una estructura claramente organizada
| Mes | Precio |
|---|---|
| enero | - no disponible - |
| febrero | - no disponible - |
| marzo | - no disponible - |
| abril | - no disponible - |
| mayo | - no disponible - |
| junio | - no disponible - |
| julio | - no disponible - |
| agosto | - no disponible - |
| septiembre | - no disponible - |
| octubre | - no disponible - |
| noviembre | - no disponible - |
| diciembre | - no disponible - |
Capdepera es un pintoresco pueblo histórico en el noreste de Mallorca, conocido por su castillo medieval y su encantador mercado semanal. Una vez a la semana, las calles se llenan de vida con vendedores locales que ofrecen productos frescos, artesanías y especialidades de la isla.
Situado en una colina, Capdepera ofrece impresionantes vistas de la costa y de los bosques de pinos circundantes. A pocos minutos se encuentran las playas de Cala Agulla y Cala Mesquida, con su arena fina y aguas turquesas.
Capdepera combina la tranquilidad rural con una buena infraestructura y la proximidad a Cala Ratjada, donde restaurantes, tiendas y el puerto ofrecen variedad. El aeropuerto de Palma está a unos 60 minutos (aprox. 73 km), lo que garantiza un acceso cómodo durante todo el año. Esta ubicación combina la paz y la naturaleza con la conveniencia de servicios cercanos.
Este mapa muestra la situación de la propiedad en la visión general. Mallorca.
Hemos recopilado una selección de las Playas, Campos de golf, Puertos Deportivos y Restaurantes más atractivos.
Toda la información como mejor se puede saber, salvo por error durante el periodo de venta. Sirva este documento como un informe previo, las bases legales solo serán validas a traves de un contrato de compra acordado ante Notario.
Referencia:
122619
Situación:
Capdepera
Construido:
765 m²
Terreno:
27.873 m²
Dormitorios:
8
Baños:
8
Piscina:
![]()
Vistas al mar:
![]()
Certificado enérgetico:
E
Precio:
€ 3.500.000,-
Visita virtual:
¡Muchas gracias por su solicitud!
En breve nos pongamos en contacto con usted a darle la información requerida.