 
		+34 971 698 242

 
					     Ubicado en una situación excepcional, en primera línea de mar en Colònia de Sant Pere, este terreno de 402 metros cuadrados en la tranquila urbanización Espanyol ofrece una oportunidad única para construir una vivienda exclusiva con vistas despejadas al mar en una de las zonas más bellas de Mallorca.
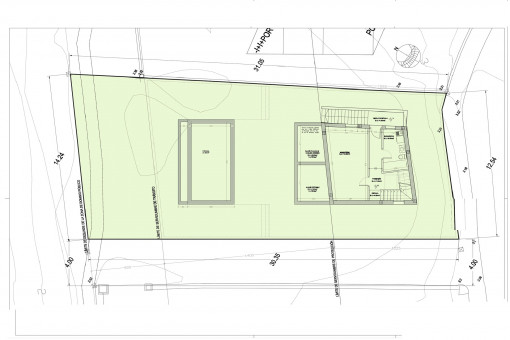
El proyecto básico aprobado contempla la construcción de una villa de 159,40 metros cuadrados distribuidos en 3 plantas. La planta baja cuenta con un amplio salón-comedor de concepto abierto, cocina y un baño. En la primera planta hay 2 espaciosos dormitorios y otro baño. En la tercera planta, un salón adicional ofrece unas vistas espectaculares al mar. El sótano proporciona espacio extra para almacenamiento y zona de lavandería.
Diseñada para el máximo confort, la zona exterior dispone de una piscina de 21,3 metros cuadrados con terraza solárium, un lugar ideal para relajarse mientras se disfruta del paisaje costero.
Ya sea como residencia habitual o como una exclusiva casa de vacaciones, esta propiedad ofrece tranquilidad, naturaleza y unas vistas impresionantes. Contáctenos para más información o para concertar una visita.
						
						
						
Colonia de Sant Pere esta situado en el municipio de Artà. Situado maravillosamente delante de la formación de montaña Mont Ferrutx, vive en el propio ritmo de sus habitantes que tampoco en los meses de verano se altera demasiado. Con la construcción del nuevo Club Náutico el pueblo ha crecido, pero por razones de los reglamentos de construcción no existen grandes edificios ni hoteles. Puestas de sol inolvidables son recuerdos entre los visitantes de este pueblo.
 Este mapa muestra la situación de la propiedad en la visión general. Mallorca. 
     
          Hemos recopilado una selección de las Playas, Campos de golf, Puertos Deportivos y Restaurantes más atractivos. 
 
Toda la información como mejor se puede saber, salvo por error durante el periodo de venta. Sirva este documento como un informe previo, las bases legales solo serán validas a traves de un contrato de compra acordado ante Notario.
Referencia:
122174
Situación:
Colonia de San Pedro
Terreno:
402 m²
Edificable:
-
Superficie edificable:
159 m²
Licencia de obras:
-
Vistas al mar:
-
Precio:
€ 1.050.000,-
Visita virtual:
			¡Muchas gracias por su solicitud!
			En breve nos pongamos en contacto con usted a darle la información requerida.