+34 971 698 242

No muy lejos de la Milla de Oro de Palma - el famoso Paseo del Borne y a sólo 2 minutos a pie de Jaime lll con sus finas boutiques y tiendas, este adosado está situado en una pequeña y tranquila calle lateral. A tiro de piedra de la "calle de los galeristas", encontrará una gran variedad de tiendas de arte contemporáneo internacional.
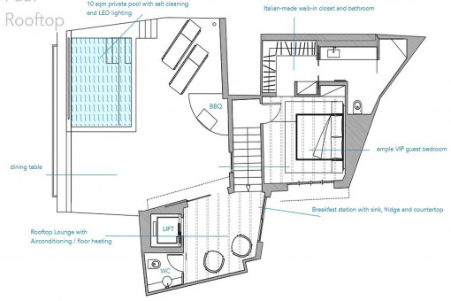
Lo más destacado de esta casa adosada es la terraza privada de la azotea, que cuenta con una zona cubierta con una pequeña cocina para desayunos, un solárium con salón, piscina privada para refrescarse y una cocina barbacoa exterior.
La entrada ofrece un ambiente tradicional con un típico suelo de piedra mallorquina y modernos elementos de madera. El garaje privado con un elaborado diseño del techo, elementos de iluminación indirecta y pared de piedra de Mares, ofrece un amplio espacio para un coche. Además de una cocina equipada integrada, un ascensor conduce a través de todos los niveles de la casa a la terraza.
La zona de estar con cocina americana se encuentra en la 2ª planta de la propiedad. La elegante cocina de diseño de Poliform, con una isla de cocción de fina piedra natural italiana y una barra de aperitivos de madera, es la pieza central de esta planta. Un elegante salón con chimenea de gas Kalfire de piedra y madera crea un ambiente acogedor incluso en los meses más fríos del año.
El espacioso dormitorio principal con baño propio se encuentra en la 1ª planta. La elegante suite, con una altura de techo de 3,5 metros, marca nuevos acentos estilísticos. La grifería en negro mate y una ducha de lluvia de ICONICO, así como un vestidor, garantizan un estilo individual. Una habitación de invitados adicional, también con su propio cuarto de baño, también se encuentra en este nivel de vida y es ideal para niños o invitados.
La oferta se completa con la suite de invitados VIP. El dormitorio está bañado en luz natural con vistas al patio interior. El ambiente exclusivo se complementa con un vestidor y un cuarto de baño.
El casco antiguo de Palma es ideal para quienes quieran vivir en pleno centro de la ciudad.
Pequeñas plazas de ensueño, calles estrechas, hermosos y pintorescos edificios, animadas calles comerciales, restaurantes y cafés. Siempre hay algo que hacer en esta parte de la ciudad y la mayoría de los sitios de interés, como la famosa catedral de La Seu (construida entre los siglos XIV y XIX), los baños árabes, el Palacio de la Almudaina o el famoso barrio nocturno de La Lonja, están en las cercanías. Aquí entrará en contacto con la historia de la capital de Mallorca.
Dé un paseo por las estrechas calles del casco antiguo de Palma y tómese un café o una copa de vino en una de las pequeñas plazas. ¡Déjese inspirar por el encanto de la perla del Mediterráneo y nunca olvidará Palma!
La “Plaza España” está muy cerca. Desde aquí tiene acceso a una red de transporte muy bien desarrollada, ya sea en autobús, tren o taxi.
Este mapa muestra la situación de la propiedad en la visión general. Mallorca.
Hemos recopilado una selección de las Playas, Campos de golf, Puertos Deportivos y Restaurantes más atractivos.
Toda la información como mejor se puede saber, salvo por error durante el periodo de venta. Sirva este documento como un informe previo, las bases legales solo serán validas a traves de un contrato de compra acordado ante Notario.
Referencia:
077960
Situación:
Palma de Mallorca Casco Antiguo
Construido:
320 m²
Terreno:
117 m²
Dormitorios:
3
Baños:
3
Vistas al mar:
-
Certificado enérgetico:
en proceso
Precio:
a consultar
Visita virtual:
¡Muchas gracias por su solicitud!
En breve nos pongamos en contacto con usted a darle la información requerida.