+34 971 698 242

Este atractivo solar de esquina se encuentra en una zona residencial muy solicitada de Palma. El barrio cuenta con una excelente infraestructura y una zona residencial tranquila pero bien comunicada. Con una licencia de construcción existente, la parcela ofrece la base ideal para la realización de una casa de ensueño moderno.
Propiedad residencial planificada:
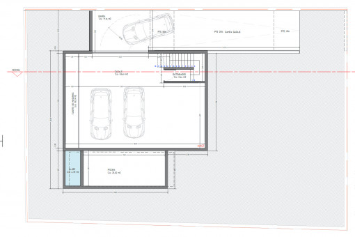
Sótano
El sótano ofrece un amplio espacio con un espacioso garaje para 2 vehículos (aprox. 100 metros cuadrados). Esta zona se complementa con una práctica sala de máquinas, depósitos de agua y una escalera que conecta con los niveles de vivienda superiores.
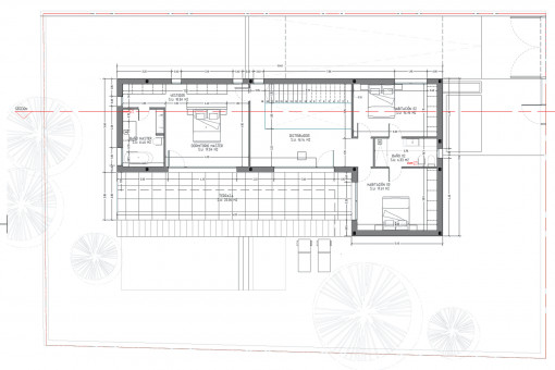
Planta baja
Una amplia zona de entrada le da la bienvenida en la planta baja. Desde aquí se abre el luminoso salón-comedor con cocina contigua, el punto de encuentro perfecto para la familia y los invitados. En este nivel también hay un dormitorio, un cuarto de baño, un lavadero y una amplia terraza con acceso a la piscina (aprox. 30 metros cuadrados), que invita a relajarse.
Planta superior
La planta superior alberga el dormitorio principal con su propio vestidor. Otros dos dormitorios y 2 elegantes cuartos de baño proporcionan amplio espacio y comodidad. Un distribuidor central redondea el nivel y proporciona una transición armoniosa entre las habitaciones.
Otros puntos a destacar son la tranquila pero céntrica ubicación suburbana de Palma, atractiva ubicación en esquina, una espaciosa y moderna distribución de las habitaciones, una zona exterior con piscina y terraza solarium.
También hay que destacar la licencia de obra existente.
Las Maravillas es una zona residencial tranquila que se encuentra junto a la playa de Palma famosa y está especialmente solicitada debido a su cercanía a la capital de Palma. La zona es moderna y muy popular entre los residentes.
Este mapa muestra la situación de la propiedad en la visión general. Mallorca.
Hemos recopilado una selección de las Playas, Campos de golf, Puertos Deportivos y Restaurantes más atractivos.
Toda la información como mejor se puede saber, salvo por error durante el periodo de venta. Sirva este documento como un informe previo, las bases legales solo serán validas a traves de un contrato de compra acordado ante Notario.
Referencia:
122461
Situación:
Playa de Palma
Terreno:
600 m²
Edificable:
![]()
Superficie edificable:
386 m²
Licencia de obras:
![]()
Vistas al mar:
-
Precio:
€ 560.000,-
Visita virtual:
¡Muchas gracias por su solicitud!
En breve nos pongamos en contacto con usted a darle la información requerida.