Bonito solar con proyecto aprobado entre Son Carrió y Sa Coma

Descripción del inmueble:

El terreno de construcción de 14,000 metros cuadrados cerca de Son Carrió se encuentra en una elevación y ofrece una vista panorámica al mar en dirección a Sa Coma y Cala Millor.

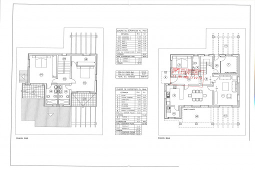
Está prevista la construcción de una casa de dos pisos con una superficie de 210 metros cuadrados, así como una piscina de 50 metros cuadrados. El comprador potencial tiene la opción de personalizar el proyecto según sus preferencias individuales.

En el terreno, se encuentran conexiones a la red local de agua y suministro eléctrico.

Lugar & alrededores:

Son Carrió esta situado entre Manacor y el litoral este de Mallorca, ya desde lejos se reconoce por su grandísima iglesia. Parece un pueblo muy tranquilo pero entre los turistas y los habitantes que buscan la tranquilidad es muy popular, también por su cercanía a la costa.


Este mapa muestra la situación de la propiedad en la visión general. Mallorca. Hemos recopilado una selección de las Playas, Campos de golf, Puertos Deportivos y Restaurantes más atractivos.


Toda la información como mejor se puede saber, salvo por error durante el periodo de venta. Sirva este documento como un informe previo, las bases legales solo serán validas a traves de un contrato de compra acordado ante Notario.

120919

Son Carrio

14.971 m²

-

210 m²

-

€ 385.000,-

Visita virtual

Su solicitud

¡Muchas gracias por su solicitud!
En breve nos pongamos en contacto con usted a darle la información requerida.