+34 971 698 242

Esta preciosa planta baja se ubica en una tranquila calle de Palma, en el barrio de Foners, a tan solo diez minutos caminando del casco antiguo y 5 del Paseo Marítimo. En sus alrededores existen todo tipo de servicios, desde supermercados, restaurantes, cafés etc.
La vivienda es de nueva construcción y posee acabados de altas calidades. Su ventaja más interesante es la piscina y terraza comunitarias que proporcionan un espacio de relax y tranquilidad, además tiene vistas parciales al mar.
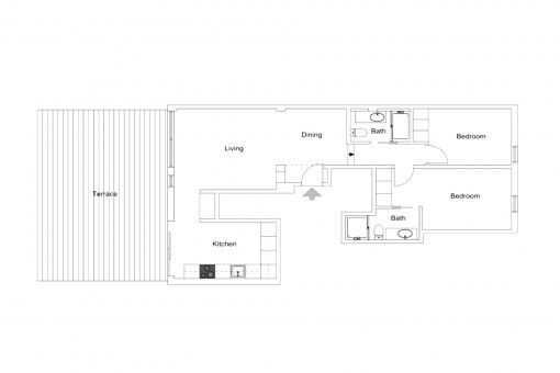
La vivienda se encuentra en la planta baja del sofisticado edificio en el que hay un total de 5 viviendas. El arquitecto ha combinado perfectamente los materiales de alta calidad y ha conseguido un ambiente acogedor, muy agradable y a la vez urbano y elegante, con colores neutros que proporcionan un ambiente relajante. La gran terraza de 46 metros cuadrados posee enormes ventanales que proporcionan luz a la vivienda y destaca también por su privacidad.
Sus 78 metros cuadrados construidos se distribuyen en 2 habitaciones dobles y 2 baños completos con ducha, uno de ellos en suite. Tiene una amplia zona de estar y comedor, y una bonita cocina perfectamente integrada.
Algunas características serían aire-acondicionado por conductos frío-calor, amplio y moderno ascensor, baldosas de piedra Zarci, electrodomésticos Bosch, todas las ventanas con Climalit y madera de Iroko.
Adicionalmente, el piso se ha amueblado recientemente con un exquisito gusto y muebles de diseño que están incluídos en el precio de venta.
| Referencia | Construido | Dormitorios | Piso | Precio |
|---|---|---|---|---|
| 122374 | 92 m² | 2 | 3 | € 695.000,- |
| 122374A | 124 m² | 2 | 0 | € 660.000,- |
Palma es la ciudad más grande de Mallorca con 400.000 habitantes. La ciudad vieja tiene impresionante arquitectura histórica como los Baños Árabes o el famoso distrito de entretenimiento de 'La Lonja'. También ofrece numerosas playas, puertos deportivos y el famoso Paseo Marítimo, que se extiende kilómetros a lo largo del mar permitiendo una multitud de actividades. Aquí se encuentran bares y restaurantes, el nuevo centro de convenciones, y el teatro de la ciudad- el Auditorio.
Durante todo el año la ciudad ofrece una amplia variedad cultural. Muchas de las tiendas se pueden encontrar en el gran centro comercial en la carretera de circunvalación "Vía Cintura".
También se encuentran en Palma la única Universidad de las Islas Baleares (UIB), el parque de la tecnología moderna 'Parc Bit', la mayor concentración de escuelas internacionales y los hospitales más modernos (Clínica Planas y el nuevo hospital Son Espases).
Para el transporte, la ciudad es una de las infraestructuras más modernas en Europa que ofrece el aeropuerto internacional "Son Joan", el nuevo metro y la red de carreteras que está completamente desarrollada y perfectamente mantenida.
Este mapa muestra la situación de la propiedad en la visión general. Mallorca.
Hemos recopilado una selección de las Playas, Campos de golf, Puertos Deportivos y Restaurantes más atractivos.
Toda la información como mejor se puede saber, salvo por error durante el periodo de venta. Sirva este documento como un informe previo, las bases legales solo serán validas a traves de un contrato de compra acordado ante Notario.
Referencia:
122374A
Situación:
Palma City
Construido:
124 m²
Dormitorios:
2
Baños:
2
Terraza/Balcón:
46 m²
Ascensor:
-
Vistas al mar:
-
Piscina:
![]()
Certificado enérgetico:
C
Precio:
€ 660.000,-
Visita virtual:
¡Muchas gracias por su solicitud!
En breve nos pongamos en contacto con usted a darle la información requerida.
Palma City: Última unidad disponible – Ático de obra nueva con amplia terraza en la azotea en Palma
Palma City: Piso cerca del centro con parking y terraza en Palma
Palma City: Exquisito ático de obra nueva cerca del mar en Palma, Foners
Palma City: Ático moderno con vistas panorámicas y amplia terraza en la azotea en Bons Aires, Palma